Specification Of The Construction Work Of Englemere Rehabilitation Centre
If you want to be successful in your assignments and improve your grades, use our assignment sample at Native Assignment Help. Our team of proficient assignment help experts is knowledgeable and experienced enough to produce outstanding papers that meet academic standards. Thus, come together with us at Native Assignment Help for sure success in everything.
1: Introduction
The ground surface of the Engelmann Rehabilitation Centre proposing to construct the site which was appearing in the plan was a foregoing maintenance depot for a specific bus company. That specific land was acquired by the Regional Development which was a funded agency by the government. The agency took the responsibility to redevelop the land. This complete project was joined under a contractor. The main purpose of the contractor was to build the site way more attractive. The existing building was destroyed for this development. All the foundations were gradually removed and even crushed to form the land into hard-liner. The soil of the top surface of the land was also pulled out. Later, the construction site was completely enfolded with a fresh topsoil.
2: Main Discussion
The pits of the existing garage could not be pulled out. That is the reason the pits were then replenished with integrated stable hard-liner filling. The main project work was to include the sewage system. In addition, the system of water drainage was installed under the Englemere Drive was the main motive to the new project.
2.1 Borehole
At the boundary, the north side of the plan involves a 900mm high steel post along with the
wire fence. This report has been authorized by the agency of the Regional Development. Two encroaching water holes were implemented on the construction site. They both are located on the site plan that has been proposed. The samples of soil were collected for the chemical analysis. The initial detection of that analysis indicates a huge effectiveness of the petro-chemical taint. The level of the surface water was tracked down under 0.5m depth of the ground level of the construction site. The first borehole shows that topsoil surface is under the depth of 0.15m, whereas the made level, clay level, and coal level are respectively under 1.05m, 2.30m, and 2.65m.

Figure 1: Boreholes
In addition, the mudstone and the sandstone of those huge big holes are correspondingly under 3.05 and 4.25m of the grounded level. On the other hand, the second borehole includes another extra level of siltstone. The second water hole indicates different sizes of layers compared to the first one. Here, it indicates the level of topsoil is under 0.25m of the surface level. In addition, the made level, mudstone level and coal level are shown under 2.15m, 3.55m and 3.75m of the ground surface in a corresponding way. This particular hole does not involve the clay level. Instead of the clay level, the siltstone level and the sandstone level are included here in consecutive ways under 4.85m and 5.15m under the ground surface (Lee. 2019). This is applied to level up the construction site while removing the existing superstructure of the garage building. Some materials have been used for developing the casing of boreholes. The materials are carbon steel, stainless steel and plastic.
2.1.1. Table for Components of Boreholes
1. BOREHOLE 1
  | 
  | 
Table 1: Components of Borehole 1
2. BOREHOLE 2
  | 
  | 
Table 2: Components of Borehole 2
Not exclusively, but commonly the PVC can be used here. The surface collar includes the space of 20 mm between the collar of the surface area and drill hole. The lining of the casing pipes for both the boreholes involves nominal diameter of 125mm and 2.9m length.
2.2 Foundation and Slab
The ground floor of the mentioned project work includes one bedroom, one bathroom and one kitchen attached with the living room. The same planning involves the other side of the building as per the building plan of the ground floor (Goldy et al, 2021). The mix concrete of C25 grade is used here in the foundation work. That means that the concrete is having 25 Newton strength following 28 days of construction work. Thai type of concrete is very strong and it can help to support large and heavyweight structures.

Figure 2: Sustainable slab
That even includes the reinforced fill, trench fill and even the filling of mass concrete. Strip foundation work was constructed here. The level of the topsoil surface was trenched down. That helps to put the footing below the frost surface. This specific grade of concrete is a combination of the Portland cement and water (Oke et al, 2019). Come to the flooring, the BS 8500 standard is used in this construction. The flooring is performed by the suspended concrete here. This is used here because the level of water is not so low under the ground surface. That could be the reason; the soil can attack a slab of concrete. That is why the suspended floors were included in this construction project work (Set, 2019). Ground floor could be made up with concrete slab, while supporting both the internal and external load bearing room dividers. This type of floor allows great flow of air. That helps to prevent the damp ground (Gharouni et al, 2021). It even exhibits slighter bounce along with the vibration (SCOPE, 2021). This kind of floor slab also helps to prevent the transmission of noise between two floors. That helps to transfer loads directly to the foundation.
2.3 Brickwork
In UK construction, multiple types of bricks can be used, such as facing bricks, common bricks, engineering bricks, concrete bricks etc. The concrete bricks were used for this particular construction work in the UK (Goehl, 2020). This kind of brick is built from pouring the concrete into the moulds. This kind of bricks are used in the construction work because The use of concrete bricks are suitable for any construction work as the durability of concrete brick is so long. Using this kind of brick in a construction work helps the construction look more attractive. It even gives high performance in case of the durability of the specific building. These bricks help to make a wall that is bigger in size but includes fewer joints. The concrete bricks are extremely uniform in terms of measurement (Allen et al, 2019). That is the reason it helps to provide a precise view of accuracy that the material is needed in the construction. In addition, it involves the medium range in the compressive length. Moreover, the concrete brick includes excellent fire resistance. The level can go up to 240 minutes.

Figure 3: Concrete Brickwork
Additionally, this kind of brick provides a guarantee to the quality of the assembly. Dense materials such as concrete aggregates have characteristics like slow cooling and heating. Concrete bricks involved an extremely huge capacity of storing the heat. That specific factor helps to consume the energy of the building (Granville, 2019). When the outer walls of the building are constructed with the concrete brick that defines that it has a capability of absorbing less water. This waterproof feature of the concrete brick helps to grow the value of CTE. In addition, these types of bricks can easily be cleaned and even do not freeze. That is the reason; it provides a breathable wall to the building (Smith et al, 2019).
Using that type of bricks in a construction work helps to reduce the cost of the whole construction project work as it involves various advantages like accuracy and speed while running the project work. The concrete brick is only being avoided for the construction of underground.
2.4 Roof
This particular construction work involves Hip structured roof. This kind of roof involves the slope while meeting at the top and even it forms the ridge. It looks kind of like a pavilion. This type of roof has great performance in high wind (Camacho et al, 2019). In addition, the construction is really easy to build. The UK is a country where snowfall occurs in the winter season.

Figure 4: Hip-structured Roof
The Hip roof helps not to freeze the snow on the rooftop. Moreover this type of roof takes part in a great ventilation system. Moreover this particular roof is less expensive compared to others.
2.5 Staircase
The building planning provides that the specific building involved “Dog-legged Staircase”. This is the most effortless form of stairway (Bertram et al, 2019). This includes a stair of rises to the half-landing. This half-landing takes place just before the turning of 180 degrees and then it continues upwards. While implementing this kind of staircase in a building, it should be remembered that at least 3 risers must be provided on a rise (Jothimurugan et al, 2019). Additionally, a rise should not contain more than 16 risers. In this particular project, the staircase includes 8 flights at a rise.
According to the building plan, the stair shows that it includes a slope of 35 degrees. The plan also involves the information that the ratio of the rise for both the strides is same in this specific construction project (Hickish et al, 2022). This kind of stairway requires such a space that is twice the width of strides. The slope that involves this kind of stair is quite similar to the measured angle between a dog’s legs (Yzelman et al, 2020). It is not necessary that the length for both the stairways is needed as equal. Applying this kind of stair helps to reduce the wastage of space of the constructed building. Providing this staircase even helps to maintain the floor privacy. The architectural effects can easily be permeated in this kind of stairway (Bertram et al, 2020). This specific staircase includes a particular resting space. That helps to commute in such an easy way.
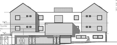
2.6 Elevation views
The east elevation of the particular construction showed that the building involved the “Double glazed aluminum window” along with the same door frames. The balconies of the building are covered with toughened glass. In addition, a solar panel was shown in the south facing of the construction project (Viles et al, 2020). This information was found out from the south elevation of the building planning.
The elevation also provides that the height of the parking bays is 700mm made with the metal railing (Lano et al, 2020). On the other hand, the fencing boundary of the whole building has been constructed with timber.
Conclusion
This project work involves numerous pieces of information that can be analyzed. Starting from the borehole to the stairways this construction work provides multiple data that helps to analyse the construction work of Engle mere Rehabilitation Centre. This assignment provides a detailed overview of the materials and stuff that had been used for the development of this building. This assignment includes information about the steps of the materials while digging a borehole. In addition, the grade of the concrete aggregate that was used in the foundation is also mentioned here. In the case of the brickwork, what type of brickwork is used there is specified along with the reason for using that particular category. Moreover, the specification of the staircase, about the rise and step of the stair, sloping of the flight of the stair including with the elevation of the building is also mentioned here.
Reference List
Journals
Allen, E., & Iano, J. (2019). Fundamentals of building construction: materials and methods. John Wiley & Sons. Retrieved from: https://books.google.com/books?hl=en&lr=&id=2HGqDwAAQBAJ&oi=fnd&pg=PR11&dq=SPECIFICATION+OF+THE+CONSTRUCTION+WORK&ots=oqZWdZtslV&sig=G4_nseA0WQV7zDz1qJcI4hdqO7M [Retrieved on: 28.02.2023]
Bertram, C. A., Rasmussen, J. B., Mueller, G. O., & Mortensen, N. H. (2020). A Design Specification Chain: A Concept for Improving Revision Management and Change Tracking. DS 101: Proceedings of NordDesign 2020, Lyngby, Denmark, 12th-14th August 2020, 1-14. Retrieved from: https://www.designsociety.org/publication/42561/A+Design+Specification+Chain%3A+A+Concept+for+Improving+Revision+Management+and+Change+Tracking [Retrieved on: 28.02.2023]
Bertram, N., Fuchs, S., Mischke, J., Palter, R., Strube, G., & Woetzel, J. (2019). Modular construction: From projects to products. McKinsey & Company: Capital Projects & Infrastructure, 1-34. Retrieved from: https://www.ivvd.nl/wp-content/uploads/2019/12/Modular-construction-from-projects-to-products-full-report-NEW.pdf [Retrieved on: 28.02.2023]
Camacho, A., Icarte, R. T., Klassen, T. Q., Valenzano, R. A., & McIlraith, S. A. (2019, August). LTL and Beyond: Formal Languages for Reward Function Specification in Reinforcement Learning. In IJCAI (Vol. 19, pp. 6065-6073). Retrieved from: https://www.ijcai.org/proceedings/2019/0840.pdf [Retrieved on: 28.02.2023]
Gharouni Jafari, K., Ghazi Sharyatpanahi, N. S., & Noorzai, E. (2021). BIM-based integrated solution for analysis and management of mismatches during construction. Journal of Engineering, Design and Technology, 19(1), 81-102. Retrieved from: https://www.emerald.com/insight/content/doi/10.1108/JEDT-02-2020-0044/full/html [Retrieved on: 28.02.2023]
Goehl, D. (2020). Seal Coat Specification Recommendations (No. 0-6989-P1). Texas A&M Transportation Institute. Retrieved from: https://rosap.ntl.bts.gov/view/dot/64433 [Retrieved on: 28.02.2023]
Goldy Prince, D., John, E., & George, J. (2021). A STUDY ON PRESCRIPTIVE TO PERFORMANCE SPECIFICATION OF DURABLE CONCRETE IN CONSTRUCTION INDUSTRY. Retrieved from: https://www.academia.edu/download/71967665/IRJET_V8I7554.pdf [Retrieved on: 28.02.2023]
Granville, M. J. (2019). Towards a Model-Based System Specification and Verification in Integrated AEC-Projects. Retrieved from: https://research.tue.nl/files/136203405/Granville_0978077.pdf [Retrieved on: 28.02.2023]
Hickish, B., Fletcher, D. I., & Harrison, R. F. (2022). A methodology to optimise a rail network specification for maximum passenger satisfaction and reduced initial investment. Journal of Rail Transport Planning & Management, 21, 100279. Retrieved from: https://www.sciencedirect.com/science/article/pii/S2210970621000445 [Retrieved on: 28.02.2023]
Jothimurugan, K., Alur, R., & Bastani, O. (2019). A composable specification language for reinforcement learning tasks. Advances in Neural Information Processing Systems, 32. Retrieved from: https://proceedings.neurips.cc/paper/2019/hash/f5aa4bd09c07d8b2f65bad6c7cd3358f-Abstract.html [Retrieved on: 28.02.2023]
Lano, K., Fang, S., & Kolahdouz-Rahimi, S. (2020, October). TL: An abstract specification language for bidirectional transformations. In Proceedings of the 23rd ACM/IEEE International Conference on Model Driven Engineering Languages and Systems: Companion Proceedings (pp. 1-10). Retrieved from: https://dl.acm.org/doi/abs/10.1145/3417990.3419223 [Retrieved on: 28.02.2023]
Lee, J. H. (2019). A Study on the Design & Construction Method of Traditional Landscape Space through the 『Imwongyeongjeji』「Seomyongji」 and the'Standard Specification for Repairing Cultural Heritages'. Journal of the Korean Institute of Traditional Landscape Architecture, 37(4), 1-10. Retrieved from: https://www.koreascience.or.kr/article/JAKO201914761832870.pdf v
Oke, A., Akinradewo, O., Aigbavboa, C., & Akinradewo, O. (2019, November). Benefits of construction automation and robotics in the South African construction industry. In IOP Conference Series: Earth and Environmental Science (Vol. 385, No. 1, p. 012063). IOP Publishing. Retrieved from: https://iopscience.iop.org/article/10.1088/1755-1315/385/1/012063/meta [Retrieved on: 28.02.2023]
SCOPE, A. (2021). and Specifications. Upon completion of mark-up, submit a complete set of record Data to the Architect/Engineer for the Owner's records. Closed Circuit Cooling Tower Replacement Greenbrier and Butts Road Intermediate Schools, 757. Retrieved from: https://cpschools.com/purchasing/wp-content/uploads/sites/49/2022/09/Project-Manual-1.pdf#page=55 [Retrieved on: 28.02.2023]
Set, B. (2019). Specifications Book. Retrieved from: https://bidroom.net/mdb/mdb-2085/Amd%2001/36C25219B0037-0001002%20HINES%20SUPPLEMENTAL%20SPECS.PDF [Retrieved on: 28.02.2023]
Smith, S. H., Qiao, C., Suraneni, P., Kurtis, K. E., & Weiss, W. J. (2019). Service-life of concrete in freeze-thaw environments: Critical degree of saturation and calcium oxychloride formation. Cement and Concrete Research, 122, 93-106. Retrieved from: https://www.sciencedirect.com/science/article/pii/S0008884618307890 [Retrieved on: 28.02.2023]
Viles, E., Rudeli, N. C., & Santilli, A. (2020). Causes of delay in construction projects: a quantitative analysis. Engineering, Construction and Architectural Management, 27(4), 917-935. Retrieved from: https://www.emerald.com/insight/content/doi/10.1108/ECAM-01-2019-0024/full/html [Retrieved on: 28.02.2023]
Yzelman, A. N., Di Nardo, D., Nash, J. M., & Suijlen, W. J. (2020). A C++ GraphBLAS: specification, implementation, parallelisation, and evaluation. Preprint. Retrieved from: http://albert-jan.yzelman.net/PDFs/yzelman20.pdf [Retrieved on: 28.02.2023]

